卸油台(拉油口)在油田各采油厂是重要的原油生产转移交接场所,由于缺乏有效的计量手段,目前普遍采用人工取样化验核算油量的方式,其结果的及时性和权威性经常导致原油交接各方产生矛盾,管理部门也很难得到用于决策的权威数据。
针对这种现状,我公司在自有拳头产品FKC01基本型含水分析仪的基础上,结合计算机软硬件技术,开发出一套适合油田卸油台(拉油口)的计量监控方案,产品推出后受到很高评价,为众多卸油台/站解决了交接计量问题,有些站点已经被油田上级机关指定为“示范卸油站点”。

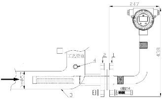
图1:产品外观结构 图2:产品安装示意图
●一次仪表为探棒插入式弯管结构,安装方便快捷,无前后直管段的要求,对流态流速不敏感,既方便在卸料口的安装,也方便了用户现场读取信息;
●内置温度传感器,仪器无需外接温度变送器便可进行温度测量显示和对含水率测量结果进行温度补偿;
●可智能判断卸油台/拉油口的卸油状态,卸油状态时表头显示屏显示:“工作中”,不卸油时表头显示屏不显示:“工作中”字样;
●支持中英文界面显示和不开盖触控操作;RS485/MODBUS智能通信接口,支持数据远传和软件现场升级;
●配套智能化卸油系统整体使用,检测结果精准快速,报警及时,防作弊效果立竿见影。
工作电源:18~28 V DC | 测量介质:油、水混合介质 |
通信接口:RS485/ModBus RTU通信 | 分辨率:0.01% |
电流输出:4~20mA | 量程:0%~3%,精度:±0.1% |
电气连接:M20内螺纹 | 量程:3%~10%,精度:±0.5% |
设计压力:1.6MPa | 量程:10%~100%,精度:±1.5% |
原油温度范围:30~90℃ | 本地显示:液晶显示 |
防爆等级:ExdbⅡCT6 Gb | 接液材质:不锈钢加聚四氟乙烯组合 |
防护等级:IP66 | 安装地点:卸油台/拉油口 |
卸油口:1~8个,可扩展数量256个 | |
软件系统功能:拉油单位/井号登记、车辆登记、称重、含水率信号处理运算、产量按不同方式统计、磅单打印、含水趋势图、历史数据保存查询等 | |
操作人员权限管理:操作员,可进行正常卸油操作,打印单据等;管理员,可修改参数微调产量计量结果,并能增减操作员; | |
安装方式: 插入式弯管结构,GB/JB/HB法兰标准可选, DN50/PN1.6MPa法兰 或 定制 | |
●卸油台型含水分析仪适用于各大卸油台、拉油口,在卸油(或苯类等化工原料)过程中精准检测含水率;
●智能检测、超限报警,防止含水超标,直接为各单位节约成本;
●配套地磅和监控软件、报警系统一起使用,可直接生成磅单核报表,节省人工费用,监测和计量结果精确、及时。
