金属硬密封蝶阀
专业的区域供热管线用阀制造商,韩国零度拥有36年的区域供热阀门制造经验,是获得韩国政府颁发的《韩国国家区域供热产品认证证书》唯一公司。我们出口到中国、俄罗斯、中亚、中东。我们一直致力于通过技术开发和认证来满足客户的需求。

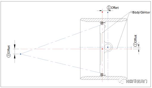
零度工业(株)拥有韩国独家三偏心专利。
零度工业(株)生产区域供热专用蝶阀。
零度工业(株)100%检测测试出库。

零度工业(株)生产的金属硬密封蝶阀有 用世界最先进的阀座密封结构。
完全保证双向等压承压渗漏等级达到 ISO5208 B级。
零度工业(株)生产的金属硬密封蝶阀为 终生免维护产品。

正向流通时:
利用供水压力从导流孔进入阀座内部,水压对密封圈由内而外的张力,达到二次密封效果。
反向承压时:
外部受压可与阀板紧密接触,保证使用时具备更好的密封效果。


同一样的产品,不一样的品质。
零度工业(株)中国办事处
零度阀门(沈阳)有限公司
Tel.+86 024 22595440 Email.zerochina@zeronet.com
地址.辽宁省沈阳市沈河区团结路7-1号华府天地1号楼612室。