广东科晶智达科技有限公司
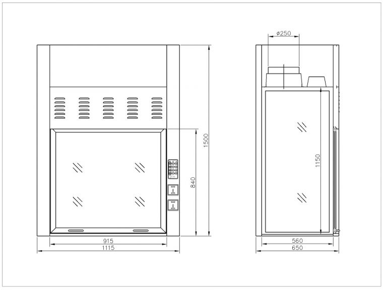
FH-36桌上型通风柜

查看原图
关注:2480
型号:FH-36
产地:广东

产品简介:FH-36桌上型通风柜是一款台式36英寸通风柜,此款通风柜采用低噪声风机,并装有防爆灯,它是专门处理材料研究实验室易燃易爆或是有毒气体,它是一款理想的设备,这款通风柜节省空间的同时还提供了许多的功能,可以节省大量的成本。

产品名称

FH-36桌上型通风柜

技术参数

1、电源输入

220V 50/60Hz,单相

2、通风柜型号及尺寸

风冷管道式通风柜

滑动拉门

钢框架结构与钢化玻璃发电板

3、鼓风机

防爆风机

气流速率: 1900m3 /min

气流压力: 190 pa

电源: 180W 208-240VAC

4、配件

触摸屏按钮电力发电板

30W的气密防爆灯

仪器内部安装有两个开关电源线

10"插座端口

产品发布日期:2026.02.05
广东科晶智达科技有限公司